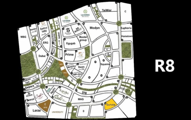
- موقع مشروع شركة قرطبة الجديد في قلب الحي السكني R8
- أهم الأماكن القريبة من مشروع شركة قرطبة في العاصمة الجديدة
- فكرة إنشاء مشروع قرطبة الجديد في الـ R8
- مساحة وتصميم مشروع شركة قرطبة الجديد العاصمة الإدارية
- استكشف وحدات مشروع قرطبة الجديد في R8 العاصمة الإدارية
- أسعار وحدات مشروع شركة قرطبة الجديد العاصمة الإدارية
- أنظمة سداد مشروع قرطبة الجديد الـ R8
- خدمات مشروع قرطبة الجديد في R8
- مميزات وعيوب مشروع شركة قرطبة الجديد الـ R8
- عن شركة قرطبة للتطوير العقاري
- مشاريع شركة قرطبة العقارية
يطل مشروع شركة قرطبة الجديد في R8 العاصمة الإدارية ليعيد تعريف معنى البيت الحلو، البيت الذي طالما حلم به كل شخص، حيث تتلاقى الراحة والخصوصية مع الفيو الخلاب والمساحات الخضراء الواسعة.
فقد تم تصميم المشروع على مساحة 21 فدان مع نسبة بنائية منخفضة تبلغ 15%، ليتيح لكل وحدة سكنية شعوراً بالهدوء والاستقلالية بعيداً عن صخب المدينة، مع إطلالات مفتوحة ومساحات خضراء تغمر المكان بالحياة.
ويجمع المشروع بين أنواع وحدات متنوعة تناسب جميع الاحتياجات، بداية من الاستوديوهات الصغيرة بمساحة 45 متر مربع، مروراً بشقق اقتصادية للبيع بالعاصمة عبارة عن 2 و3 غرف نوم بمساحات 130 و150 متر مربع، وصولاً إلى الدوبلكس الفاخر بمسبح خاص ومساحات تتراوح بين 240 و300 متر مربع، بأسعار تنافسية تراعي مختلف الإمكانيات، مع خطط سداد مرنة تصل إلى 14 سنة، لتسهيل امتلاك البيت الحلو بكل يسر.
بهذه التفاصيل تجسد قرطبة رؤيتها في مشروعها الجديد، حيث لا يقتصر الأمر على بناء وحدات سكنية، بل على خلق حياة متكاملة، تجعل العميل يختار بيته بعناية، ويشعر بالرضا منذ اللحظة الأولى، لتصبح كل زاوية وكل اختيار من الألوان والإطلالات انعكاس حقيقي لمعنى البيت الحلو الذي تسعى الشركة لتحقيقه.
تواصل الآن مع فريقنا المتخصص من خلال الأرقام التالية لمعرفة أحدث التفاصيل:
- الاتصال على رقم الهاتف التالي: 01025717671
- التواصل عبر تطبيق الواتساب من هنا 01025717671
موقع مشروع شركة قرطبة الجديد في قلب الحي السكني R8

يتميز مشروع شركة قرطبة الجديد في قلب الحي R8 العاصمة الإدارية بموقع فريد على المحور المركزي D2، مما يمنح السكان وصولاً سريعاً ومباشراً إلى أهم النقاط الحيوية في العاصمة.
حيث يعكس الموقع الاستراتيجي رؤية المشروع في تقديم حياة متكاملة تجمع بين الراحة والرفاهية والقرب من كل الخدمات، مع إطلالات مفتوحة ومساحات خضراء واسعة، لتصبح كل لحظة في البيت تجربة استرخاء حقيقية بعيدًا عن صخب المدينة.
أهم الأماكن القريبة من مشروع شركة قرطبة في العاصمة الجديدة
- المحور المركزي D2 أمام المشروع مباشرة.
- محور محمد بن زايد على بُعد 10 دقائق.
- محطة المونوريل تبعد 5 دقائق.
- مطار العاصمة الدولي على بُعد مسافة 20 دقيقة.
- الجامعة الوحيدة في R8 على بُعد 3 دقائق فقط.
- حي السفارات على بُعد 5 دقائق.
- الحي الحكومي على بُعد 10 دقائق.
فكرة إنشاء مشروع قرطبة الجديد في الـ R8
يرتكز مشروع شركة قرطبة الجديد في R8 العاصمة الإدارية على فكرة واضحة تتمثل في إعادة تعريف البيت الحلو، حيث يصبح كل منزل مساحة للحياة المتكاملة وليس مجرد جدران، فقد تم تصميم المشروع بعناية فائقة لتحقيق التوازن بين الخصوصية والراحة والإطلالات المفتوحة، مع توزيع منخفض للكثافة السكانية ليشعر كل ساكن بالهدوء والاستقلالية.
وتركز فكرة المشروع على توفير تجربة سكنية متكاملة تشمل جميع أنواع الوحدات، من الاستوديوهات المدمجة إلى شقق للبيع في العاصمة الإدارية الجديدة والدوبلكس الفاخر بمسبح خاص، مع مراعاة الأسعار المنافسة وخطط السداد المرنة التي تتيح لكل أسرة تحقيق حلم امتلاك بيتها المثالي.
مساحة وتصميم مشروع شركة قرطبة الجديد العاصمة الإدارية
يمتد مشروع شركة قرطبة الجديد في R8 العاصمة الإدارية على مساحة واسعة تبلغ 21 فدان، مما يمنح المشروع القدرة على توزيع الوحدات السكنية بشكل مدروس يوازن بين الخصوصية والراحة والجمال الطبيعي.
هذا التوسع في المساحة يتيح لكل ساكن الاستمتاع بمساحات خضراء شاسعة وفيو مفتوح من كل زاوية، بحيث يشعر كل فرد في العائلة بالهدوء والسكينة بعيداً عن صخب المدينة.
وقد تم الاستعانة بخبرة الاستشاري الهندسي Arcrete لتصميم المشروع بأعلى معايير الجودة والحداثة، بحيث يجمع التصميم بين الوظائف العملية والجمال المعماري، ويخلق بيئة متكاملة تعكس روح الحياة العصرية، كما تم تقليل نسبة البنية إلى 15% فقط من المساحة الكلية، ما يتيح مساحة أكبر للطبيعة والمناظر الخلابة، ويضيف إحساساً بالانفتاح والرحابة لكل وحدة سكنية.
ويضم المشروع أيضاً أكبر لاجون داخل كمبوند سكني في R8، ليصبح عنصر أساسي في تجربة الحياة اليومية، حيث يمكن للسكان الاستمتاع بالمناظر الطبيعية والهدوء، بينما يظل كل شيء في متناول اليد من مرافق وخدمات، وبذلك تتجسد رؤية قرطبة في تقديم البيت الحلو، حيث كل تفصيلة صغيرة، من توزيع المساحات إلى اختيار الألوان والإطلالات، صممت بعناية لتجعل الحياة داخل المشروع تجربة متكاملة ومميزة لكل ساكن.
استكشف وحدات مشروع قرطبة الجديد في R8 العاصمة الإدارية
يمنحك مشروع شركة قرطبة الجديد في R8 العاصمة الإدارية خيارات متعددة من الوحدات، صُممت بعناية لتلائم جميع أنماط الحياة، من العائلات الصغيرة إلى الباحثين عن الفخامة والخصوصية المطلقة.
كل وحدة ليست مجرد مساحة للعيش، بل تجربة متكاملة تبدأ بالتصميم الذكي الذي يوازن بين الغرف والمساحات المشتركة، وتمر بالاستفادة القصوى من الإطلالات المفتوحة والمساحات الخضراء المحيطة، لتشعر من اللحظة الأولى بأنك في بيت حلو مليء بالراحة والسكينة، وتأتي الوحدات بمساحات متنوعة لتلبية كل احتياجات السكان:
- استديوهات بمساحات تبدأ من 45 متر مربع.
- شقق غرفتين تبدأ مساحتها من 130 متر مربع.
- شقق 3 غرف بمساحات تبدأ من 150 متر مربع.
- دوبلكس مع مسبح خاص بمساحات تتراوح من 240 متر إلى 300 متر مربع.
أسعار وحدات مشروع شركة قرطبة الجديد العاصمة الإدارية
مع تحديد سعر المتر عند 21,600 جنيه مصري، تمثل كل وحدة في مشروع شركة قرطبة الجديد في R8 العاصمة الإدارية فرصة حقيقية لامتلاك بيت الحلم، حيث لا يحتاج العميل للتنازل عن الجودة أو الخصوصية.
فقد طرحت الأسعار بعناية لتلائم احتياجات مختلف الأسر، بدءاً من الوحدات الصغيرة العملية التي توفر الراحة والكفاءة، حتى الدوبلكس التي تمنح أقصى درجات الخصوصية والفخامة، وكل ذلك مدعوم بخطط سداد مرنة تجعل رحلة التملك سهلة ومريحة، بحيث يشعر كل مشتري بأن خطواته نحو البيت الحلو متكاملة ومطمئنة.
- استوديو: تبدأ الأسعار من 972,000 جنيه مصري.
- شقق غرفتين: أسعار تبدأ من 2,808,000 جنيه مصري.
- شقة 3 غرف: أسعار تبدأ من 3,240,000 جنيه مصري.
- دوبلكس: بأسعار تبدأ من 5,184,000 جنيه مصري.
أنظمة سداد مشروع قرطبة الجديد الـ R8

تم تصميم أنظمة السداد في مشروع شركة قرطبة الجديد في R8 العاصمة الإدارية لتمنح كل مشتري المرونة والراحة في امتلاك وحدته، حيث يمكن الحجز بمقدم يبدأ من 2.5% فقط، مع أطول فترة سداد تصل إلى 12 سنة، مما يجعل الحصول على البيت الحلو حقيقة ممكنة دون ضغط مالي.
هذه الخطط تمثل توازناً مثالياً بين تحقيق حلم التملك والحفاظ على راحة العميل على المدى الطويل، بينما تبلغ جدية الحجز 50,000 جنيه مصري.
خدمات مشروع قرطبة الجديد في R8
يوفر مشروع شركة قرطبة الجديد في R8 العاصمة الإدارية مجموعة متكاملة من الخدمات التي تهدف لجعل الحياة اليومية أكثر راحة وسهولة، حيث تجمع بين الفخامة والوظائف العملية لتلبية احتياجات جميع السكان.
- اللاجون والبحيرات الصناعية: أكبر لاجون داخل كمبوند سكني في R8 يوفر إطلالات طبيعية خلابة ومساحات للاسترخاء، ليشعر السكان بالهدوء والسكينة في كل لحظة.
- الكلوب هاوس: مركز اجتماعي ورياضي متكامل لجميع أفراد الأسرة، يضم صالات رياضية حديثة ومنطقة للأنشطة الترفيهية والاجتماعية لتلبية كل الاهتمامات.
- المسجد: يقع داخل الكمبوند لتسهيل أداء العبادات اليومية، مع تصميم متكامل يوفر جواً روحانياً هادئاً لجميع السكان.
- العيادات الطبية: متوفرة داخل الكمبوند أو على بعد دقائق قليلة، لتضمن الرعاية الصحية السريعة والآمنة لكل أفراد الأسرة.
- المناطق التجارية والمولات: توفر كل احتياجات السكان اليومية من مشتريات وتسوق وترفيه، لتصبح كل الأمور متاحة دون الحاجة للخروج بعيدًا.
- الأمن والحراسة: نظام مراقبة متكامل على مدار الساعة يشمل كاميرات حديثة وفريق أمني مدرب لضمان سلامة كل السكان وممتلكاتهم.
- مسارات المشي والجري: مصممة بشكل آمن وجذاب لتشجيع السكان على ممارسة الرياضة اليومية والاستمتاع بالمساحات الخضراء المحيطة.
- مساحات خضراء وحدائق عامة: مساحات واسعة مخصصة للاسترخاء والتنزه العائلي، لتوفر أجواء طبيعية هادئة داخل الكمبوند.
- ملاعب رياضية متعددة: تشمل كرة قدم، كرة سلة، تنس وغيرها، لتلبية احتياجات جميع الأعمار وممارسة الرياضة في أجواء ممتعة.
- مناطق ألعاب الأطفال: مجهزة بأحدث الألعاب الآمنة لتسلية الأطفال، مع تصميم يضمن راحتهم وسلامتهم أثناء اللعب.
- مناطق للشواء والتنزه العائلي: أماكن مخصصة للعائلات لتجربة أوقات ممتعة ومشاركة نشاطات خارجية في جو مريح وآمن.
- مواقف سيارات واسعة: تتسع لجميع السكان والزوار، مع تصميم يسهل الوصول إلى الوحدات ويضمن الراحة اليومية.
- منافذ خدمات الطعام والكافيهات: تشمل مطاعم ومقاهي متنوعة لتلبية جميع الأذواق، وتوفر تجربة استرخاء ومكان للتجمعات الاجتماعية.
- خدمات الصيانة اليومية: فريق متخصص يهتم بصيانة الوحدات والمرافق بشكل مستمر، لضمان راحة السكان واستمرارية جودة الحياة داخل الكمبوند.
- مرافق ذوي الاحتياجات الخاصة: تصميم شامل يضمن سهولة الحركة والوصول لكل الأماكن داخل الكمبوند، لتوفير حياة متكاملة وآمنة للجميع.
مميزات وعيوب مشروع شركة قرطبة الجديد الـ R8

لكل استثمار عقاري ميزاته وتحدياته، ومشروع شركة قرطبة الجديد في R8 العاصمة الإدارية ليس استثناء، حيث يجمع المشروع بين تصميم مبتكر ومساحات خضراء واسعة، مع وحدات سكنية متنوعة تتراوح بين الاستوديوهات والدوبلكس الفاخرة، ما يجعله جذاباً لكل من يبحث عن بيت حلو أو فرصة استثمارية مربحة.
لكن في المقابل مثل أي مشروع حديث، يواجه بعض التحديات، مثل اعتماد بعض الخدمات المحيطة على التطوير المستقبلي للمنطقة، أو أن بعض الوحدات الفاخرة تحتاج ميزانية أكبر، وتقييم المميزات والعيوب الواقعية يساعد على اتخاذ قرار مدروس يجمع بين راحة السكن وقيمة الاستثمار.
جدول المميزات والعيوب:
| المميزات | العيوب |
|
|
عن شركة قرطبة للتطوير العقاري
نجحت قرطبة للتطوير العقاري QURTUBA Developments منذ تأسيسها عام 2019 في وضع بصمة واضحة في السوق المصري عبر مشروعات سكنية وتجارية وفندقية تجمع بين الجودة العالية والابتكار في التصميم.
بدأت الشركة انطلاقتها في مدن المنصورة الجديدة ودمياط الجديدة، حيث أطلقت أكثر من 50 مشروع متنوع خلال فترة قصيرة، مما عزز ثقة العملاء بها كشريك موثوق، وبفضل قدرتها على الجمع بين التخطيط المدروس والجودة في التنفيذ، استطاعت قرطبة بناء مجتمعات نابضة بالحياة تعكس أسلوب حياة متكامل قائم على الاستدامة.
واليوم ومع خطة توسعية طموحة تشمل العاصمة الإدارية وشرق القاهرة والمدن الساحلية، تواصل الشركة إعادة تعريف التطوير العقاري في مصر برؤية مستقبلية ونهج مبتكر يضمن أعلى قيمة استثمارية.
مشاريع شركة قرطبة العقارية
- نزل تاور العاصمة الإدارية.
- ليفورا دمياط الجديدة.
تواصل الآن مع فريقنا المتخصص من خلال الأرقام التالية لمعرفة أحدث التفاصيل:
- الاتصال على رقم الهاتف التالي: 01025717671
- التواصل عبر تطبيق الواتساب من هنا 01025717671